Marigold Meadows
Durgasamudram Village Entrance, Rayal Cheruvu Road, Tirupati Rural – 517561
Project Overview
Each villa, a fortress of solitude is a masterpiece, proving that luxury is woven into the very fabric of each home. As the sun sets over Marigold Meadows, the boundary between indoors and outdoors dissolves, inviting nature’s beauty to grace every corner of your home.
Discover a new standard of living, where every day feels like a retreat and every experience is a celebration of the extraordinary. Welcome to Marigold Meadows, where luxury knows no bounds and life is truly a bouquet of pleasures.
Enhance Your Living Experience
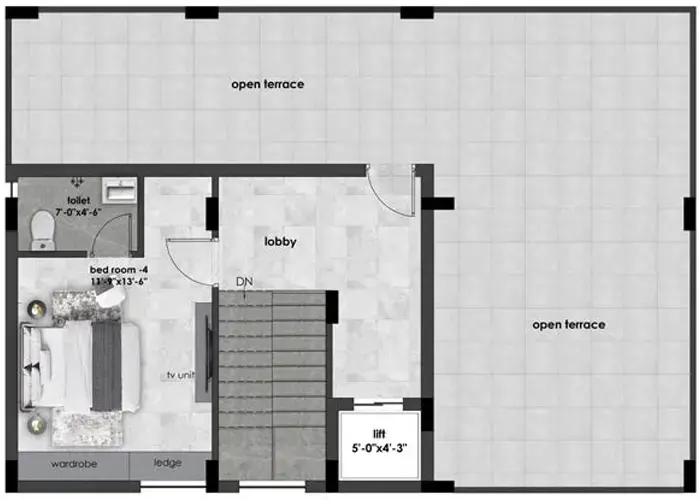
Floor Plans & Specifications
Floor Plans
Specifications
Floor Plans
Specifications
RCC Framed Structure
| RCC Framed Structure | RCC Framed Structure |
|---|
Super Structure
| Super Structure | 9” thick red brick work for external walls & 4” thick red brick work for internal walls |
|---|
Doors
| Doors | Main Door: Teak wood frame (7ft height) with Teak shutter of quality polish fixed with ironmongery of reputed make |
|---|---|
| Internal Doors: Wooden frame (7ft height) with flush shutter fixed with ironmongery of reputed make | |
| French Doors: UPVC Sliding door with mosquito mesh with designer hardware of quality make |
Windows
| Windows | Three track UPVC Window of quality make |
|---|
Grills
| Grills | Aesthetically designed safety grills make of Bright steel with Enamel finish |
|---|
Painting
| Doors | Internal: Smooth putty finish with 2 coats of paints of Asian or Equivalent over a coat of Primer |
|---|---|
| External: Two coats of Exterior Emulsion paint of Asian or Equivalent |
Flooring
| Flooring | Common areas: 60cm x 120cm double charged vitrified tiles of reputed make |
|---|---|
| Staircase: Flamed granite flooring | |
| Toilet tiles: Toilets well designed concept with designer tiles for walls and floor | |
| Utility: Glazed Designer tiles in the wash area |
Bathrooms
| Bathrooms | Washbasin, wall mounted EWCs with concealed flush tank/valve and concealed diverter of quality make |
|---|---|
| Geyser provision in all bathrooms | |
| Sanitary fixtures & fittings of quality make |
Electrical
| Electrical | Power plug for cooking range chimney, refrigerator, microwave, ovens, mixer/grinders in kitchen, washing machine and dish washer in utility area |
|---|---|
| 3 Phase supply for each unit and individual Meter Boards. Elegant designer Modular Electrical switches |
Telecom / I–NET / Cable TV
| Telecom / I–NET / Cable TV | FTH with Wi-Fi internet DTH, Telephone & Intercom |
|---|
Air Conditioning
| Air Conditioning | Provision of Air Conditioning system in Bedrooms & Common Areas |
|---|
Lifts
| Lifts | High Speed automatic passenger lifts with rescue device with V3F for energy efficiency of reputed make. Entrance with Granite cladding |
|---|
Security & Surveillance
| Security & Surveillance | Appropriate suitable security & surveillance systems |
|---|
Water Supply & Sewerage Systems
| Water Supply & Sewerage Systems |
|---|
| A Sewage Treatment plant of adequate capacity as per norms will be provided inside the project |
| Rain water harvesting for each villa |
| CPVC for water supply , UPVC for drainage system |
Generator
| Generator | 100% D.G set backup for common areas. |
|---|
Discover Our Ideal Neighborhood
Accord School
0
Mins
Rayalacheruvu
0
Mins
Tirupati Highway
0
Mins
Airport
0
Mins
Air Bypass Road
0
Mins
Hotels
0
Mins
Payment Schedule
| Level | Payment Percentage |
|---|---|
| Intial Payment | 30% |
| On Completion of Foundation | 15% |
| On Completion of Ground Floor Roof Slab | 8% |
| On Completion of First Floor Roof Slab | 8% |
| On Completion of Second Floor Roof Slab | 8% |
| On Completion of Third Floor Roof Slab | 8% |
| On Completion of Fourth Floor Roof Slab | 8% |
| On Completion of Brickwork in the Respective Flat | 10% |
| On Handing Over | 5% |
| Other Optional Costs | |
| Extra Covered Car Parking | ₹ 3,00,000/- |
| Generator/EB/CMWSSB Deposit | ₹ 5,00,000/- |
Schedule A Visit
Fill out the form below, and we’ll be in touch to arrange a convenient time for your visit any of our projects.

























